+++Großzügige 3 Zimmer ETW mit 2 Loggien in 66113 SB+++ - in Saarbrücken - Malstatt, 87 m², 3 Zimmer

Preis: 159.000 €Wohnfläche: 87 m²Zimmer: 3

Lage in Saarbrücken - Malstatt


66113 Saarbrücken - Malstatt

Beschreibung


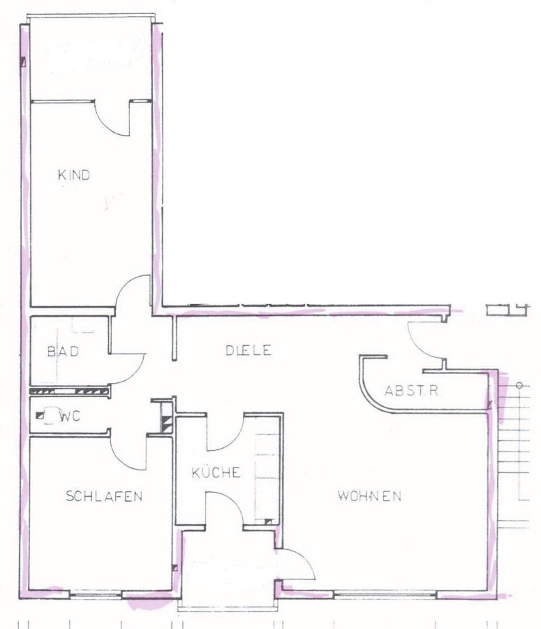
ObjektbeschreibungDie Wohnung befindet sich in einem 12 Parteien Haus welches 1976 gebaut wurde.Sie erreichen die Wohnung im 2. Stock bequem über einen Aufzug der 2021 saniert wurde.Die ca. 87m² große Wohnung mit 2 Loggien teilt sich wie folgt auf:Über de...
zum Anbieter

Weitere Interessante Angebote