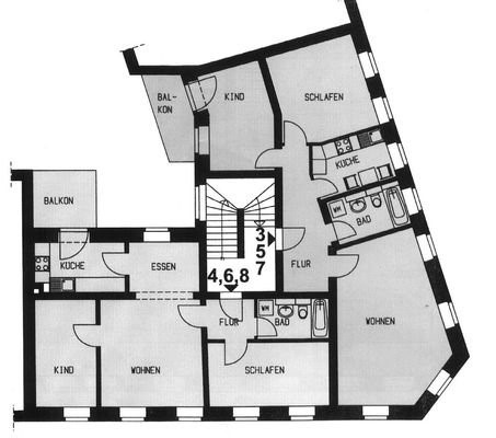
Schöne 3 Zimmer Whg.mit Balkon, Parkett im 3.OG - in Gera, 80 m², 3 Zimmer

Preis: 75.000 €Wohnfläche: 80 m²Zimmer: 3

Lage in Gera


07546 Gera (Ostviertel)

Beschreibung


Die Wohnung befindet sich in einem aufwendig saniertem MFH und hat einen schönen, individuellen Grundriss.- großes, helles Wohnzimmer, mit Parkett ausgelegt- die anderen Räume (Schlaf- und Kinderzimmer) mit Laminat.- Bad ist hochwertig gefliest hat ein Fe...
zum Anbieter

Weitere Interessante Angebote