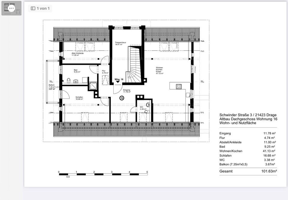
Traumhaftes Dachgeschoss im alten Fährhaus in Drage, direkt an der Elbe - , Schwinder Straße 3, 101,6 m², 2 Zimmer

Preis: 1.360 €Wohnfläche: 101,6 m²Zimmer: 2

Lage in Drage


Schwinder Straße 3
21423 Drage

Beschreibung


Es erwartet Sie eine Dachgeschosswohnung, die Ihnen ein besonderes Wohngefühl bietet.Schon der große Eingangsbereich der Wohnung macht neugierig auf das, was man noch erwarten darf.. Das Wohnzimmer ist zum Flurbereich offen gehalten und bietet Ihnen mit s...
zum Anbieter

Weitere Interessante Angebote