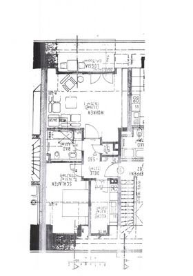
2 - Zi - ETW, München - Solln - , 66,5 m², 2 Zimmer

Preis: 740.000 €Wohnfläche: 66,5 m²Zimmer: 2

Lage in München


81477 München (Thalk.Obersendl.-Forsten-Fürstenr.-Solln)

Beschreibung


ObjektbeschreibungKleines gepflegtes Anwesen mit nur sechs Wohnungen,in einem Parkähnlichen Grundstück liegend.Zur Wohnung gehört ein Kellerabteil und ein KFZ - Stellplatz in der Tiefgarage. ( Einzelstellplatz - kein Doppelparker. )im Anwesen befindet sic...
zum Anbieter

Weitere Interessante Angebote