Wohnträume in Frankfurt: zentrale Lage und trotzdem ruhig sowie in unmittelbarer Nähe zum Main, inkl. Grundstück, Keller und Stellplatz – einzugsfertig ausgestattet - Erstbezug - in West - Schwanheim, 151 m², 146 m² Grundstück, 6 Zimmer

Reihen-/DoppelhausPreis: 1.097.800 €Wohnfläche: 151 m²Grundstück: 146 m²Zimmer: 6Etagen: 3Provisionsfrei

Ausstattungsmerkmale


TerrasseBadewanneFußbodenheizungNeubauKellermit Garage/StellplatzGarten

Lage in West - Schwanheim


60529 West - Schwanheim

Beschreibung


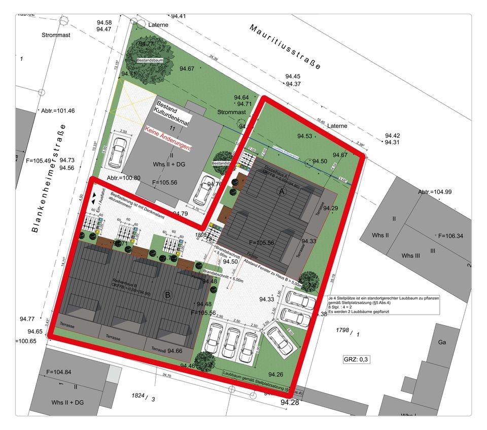
**Beschreibung**Ein hochwertig ausgestaltetes Doppelhaus in Frankfurt-Schwanheim mit seinen gewachsenen Strukturen wartet auf Sie. Unser Doppelhaus auf 3 Ebenen inkl. Keller (54 qm) und KFZ-Stellplätzen (€ 37.500,00) ist das, was Sie suchen. Dann sprechen...
zum Anbieter

Weitere Interessante Angebote