Restaurant mit Wohnung, zus. Einzel und Doppelzimmer, Auch als MFH nutzbar. - in Merzig, 430 m², 520 m² Grundstück, 12 Zimmer

Preis: 499.000 €Wohnfläche: 430 m²Grundstück: 520 m²Zimmer: 12

Lage in Merzig


66663 Merzig

Beschreibung


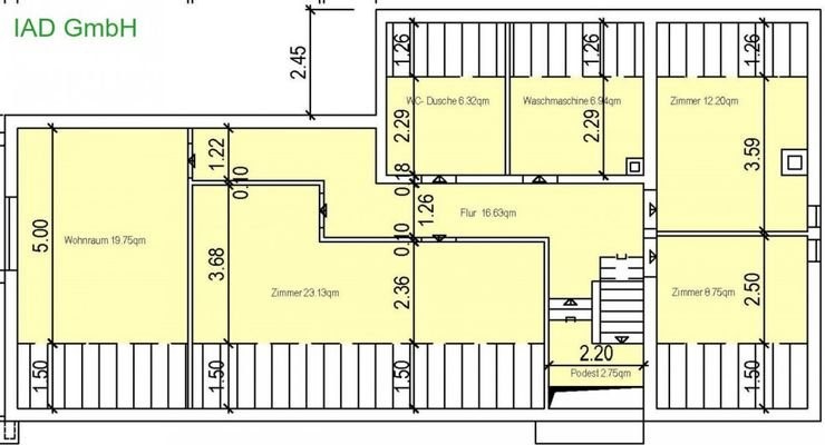
Dieses Objekt kann man auch ohne großen Aufwand als Mehrfamilienhaus umbauen.EG. ca. 149m²:Restaurant,Küche,2 zusätzliche Zimmer.1. OG. ca. 130m²:6 Zimmer,1 Bad und zusätzliche sanitäre Einrichtungen in den Räumen,2. OG. ca. 110m²:4 Zimmer,2 Bäder.Über de...
zum Anbieter

Weitere Interessante Angebote