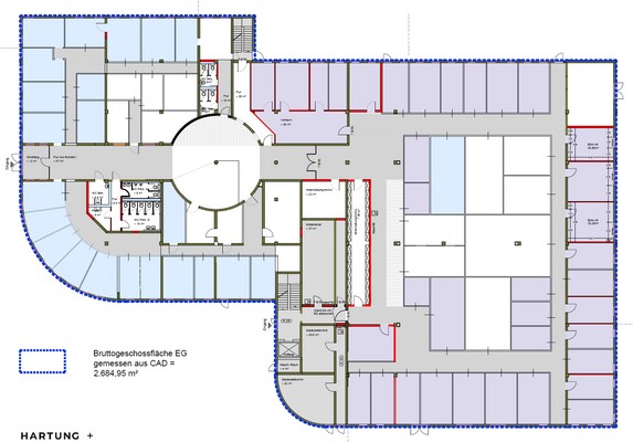
außergewöhnliches Geschäftsobjekt mit vielen Vorzügen, tlw. zur Eigennutzung - , Burgstraße 34 in Döbeln, 3900 m², 116 Zimmer

Preis: 2.800.005 €Wohnfläche: 3.900 m²Zimmer: 116

Lage in Döbeln


Burgstraße 34
04720 Döbeln

Beschreibung


Das angebotene Objekt umfasst das vollständige EG sowie OG eines sehr gepflegten Wohn- und Geschäftshaus in sehr guter Lage von Döbeln. Die Gewerbeeinheite im EG sowie eine Teilfläche des 1. OG wird ab 01.11.2023 frei und würde zur Neuvermietung oder zur...
zum Anbieter

Weitere Interessante Angebote