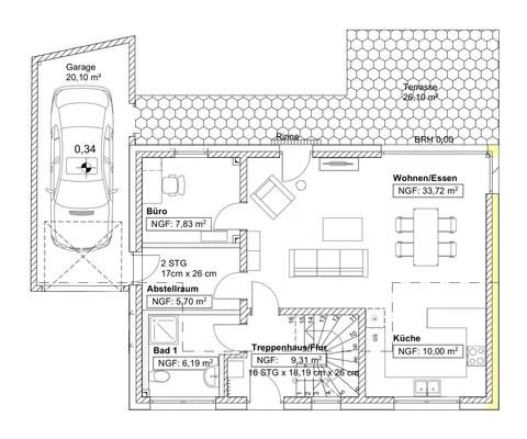
Geplanter Neubau in Merzig-Brotdorf - Einfamilienhaus mit 5 ZKB und Garage - 145 m² Wohnfläche - , 145 m², 200 m² Grundstück, 5 Zimmer

EinfamilienhausPreis: 599.000 €Wohnfläche: 145 m²Grundstück: 200 m²Zimmer: 5ProvisionsfreiBaujahr: 2024

Ausstattungsmerkmale


TerrasseGartenBadewanneGäste-WC

Lage in Merzig


66663 Merzig (Brotdorf)

Beschreibung


Herzlich willkommen in Brotdorf, dem (nach der Kernstadt) größten Stadtteil der Kreisstadt Merzig.In einer ruhigen Seitenstraße ohne Durchgangsverkehr entsteht dieses moderne Einfamilienhaus mit Top-Ausstattung.Hinter der Haustür empfängt Sie das zentrale...
zum Anbieter

Weitere Interessante Angebote