außergewöhnliches Geschäftsobjekt mit vielen Vorzügen zur Eigennutzung - , Burgstraße 34 in Döbeln, 2082 m², 52 Zimmer

Preis: 1.499.997,72 €Wohnfläche: 2.082 m²Zimmer: 52

Lage in Döbeln


Burgstraße 34
04720 Döbeln

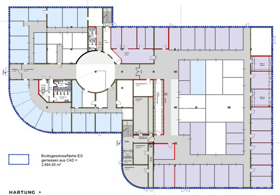
Beschreibung


Das angebotene Objekt umfasst das vollständige EG eines sehr gepflegten Wohn- und Geschäftshaus in sehr guter Lage von Döbeln. Die Gewerbeeinheite verfügt über ca. 2.082 qm. Bei Bedarf können weitere 532 qm im 1. Obergeschoss zugemietet.Besonders attrakti...
zum Anbieter

Weitere Interessante Angebote