NEUMANN - Neubau! Modernes Wohnen im Zentrum von Ingolstadt - mehr als 50% bereits reserviert! - , Schutterstr. 8, 63 m², 2 Zimmer

Preis: 421.400 €Wohnfläche: 63 m²Zimmer: 2

Lage in Ingolstadt


Schutterstr. 8
85049 Ingolstadt

Beschreibung


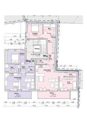
Wohnung 12Modernes Wohnen im Zentrum von Ingolstadt.Die vier Häuser mit insgesamt 24 Wohnungen, einer Gewerbeeinheit und 22 Tiefgaragenstellplätzen an der Schutterstrasse in zentraler Bestlage überzeugen durch ihre moderne und geradlinige Architektur. Die...
zum Anbieter

Weitere Interessante Angebote