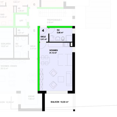
Neubau: 1-Zimmer Obergeschoss mit Balkon in Steinen - Höllstein Nr.4 - , Bernhardstraße 3, 44,6 m², 1 Zimmer

Preis: 230.000 €Wohnfläche: 44,6 m²Zimmer: 1

Lage in Steinen


Bernhardstraße 3
79585 Steinen (Höllstein)

Beschreibung


Im Ortsteil Höllstein, nahe der Wiese, errichten wir zwei alleinstehende Mehrfamilienhäuser mit gemeinsamer Tiefgarage. Eine energetisch optimierte Außenhülle, eine wertige Ausstattung und ganz allgemeine Merkmale, wie die Barrierefreiheit aller Wohnungen...
zum Anbieter

Weitere Interessante Angebote