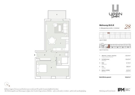
Eigentumswohnung in den URBN Studios (28.5.R) - , Washingtonallee 28 in Hamburg, 55,4 m², 2 Zimmer

Preis: 420.000 €Wohnfläche: 55,4 m²Zimmer: 2

Lage in Hamburg


Washingtonallee 28
22111 Hamburg (Horn)

Beschreibung


Die Washingtonallee im lebendigen Stadtteil Horn ist eine grüne Insel mit bester Anbindung an die Innenstadt. Die U2 und U4 bringt sie in nur 10min zum Hauptbahnhof und 12min zum Jungfernstieg. Hier in Horn finden Sie alles für den täglichen Bedarf. Parks...
zum Anbieter

Weitere Interessante Angebote