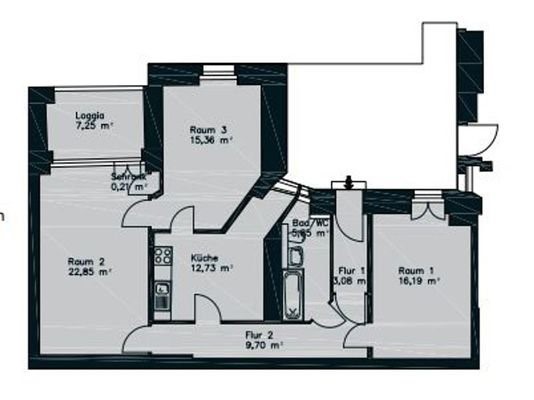
Vermietete 3-Zimmer-Altbauwohnung mit Loggia - , Bayerische Straße 3 in Berlin, 91,9 m², 3 Zimmer

Preis: 606.804 €Wohnfläche: 91,9 m²Zimmer: 3

Lage in Berlin


Bayerische Straße 3
10707 Berlin (Wilmersdorf)

Beschreibung


__Das Gebäude__Moderne Wohnkultur trifft auf klassische Eleganz: Mit Liebe zum Detail und Gespür für den architektonischen Reiz der Gründerzeit wurde die hochwertige Substanz des imposanten Altbaus in der Bayerischen Straße 3 teilsaniert und um moderne St...
zum Anbieter

Weitere Interessante Angebote