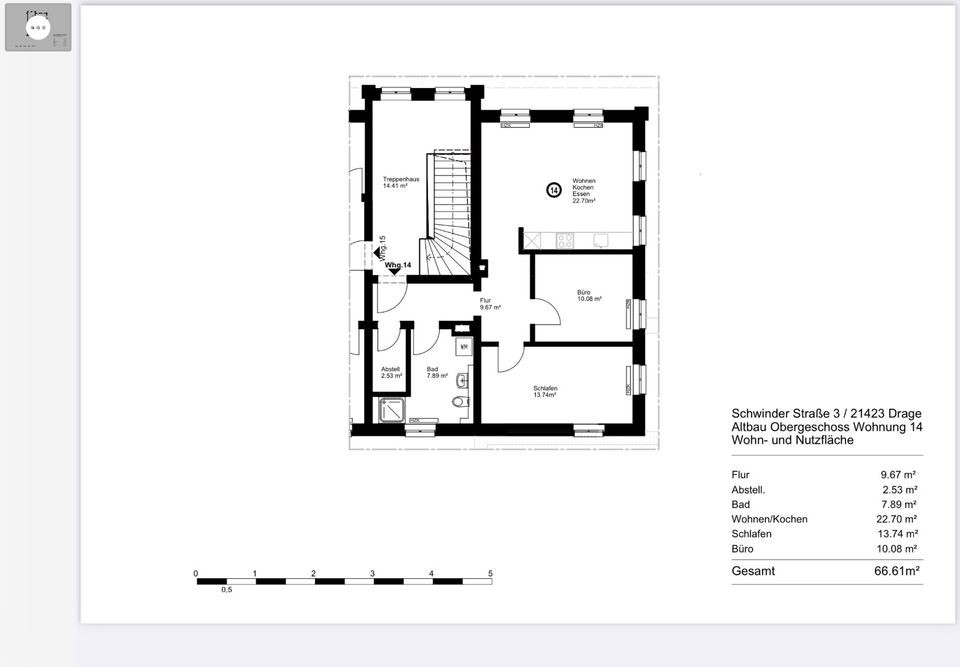
Direkt am Elbdeich entstehen gerade im alten Fährhaus wunderschöne Wohnungen - , Schwinder Straße 3 in Drage, 67 m², 3 Zimmer

Preis: 790 €Wohnfläche: 67 m²Zimmer: 3

Lage in Drage


Schwinder Straße 3
21423 Drage

Beschreibung


Freuen Sie sich auf Ihr neues Zuhause und geniessen Sie den Elbdeich, der direkt vor Ihrer Haustür verläuft.Die hier angebotene 3 Zimmer liegt im 1. Obergeschoss des alten Fährhauses. Hier befinden sich das Wohnzimmer mit seinem offenen Küchenbereich, ein...
zum Anbieter

Weitere Interessante Angebote